Tour Triangle, 2025
Case Study
Project Details:
Shaping the Skyline of Paris
Shaping the Skyline of Paris
Located in the Porte de Versailles district, The Triangle is a landmark mixed-use skyscraper rising to around 180 metres, designed to become a defining element of the modern Paris skyline.
The project targets leading environmental certifications, including BREEAM Excellent and HQE Exceptional, as well as the Effinergie label, reflecting its strong sustainability credentials.
The building will host high-quality office space alongside a range of public functions such as healthcare and cultural facilities, childcare services, a hotel and dining venues — creating a vibrant urban hub
Sustainability measures include geothermal energy systems, connection to the district heating network, energy recovery technologies, a high-performance bioclimatic façade and more than 1,000 m² of photovoltaic panels
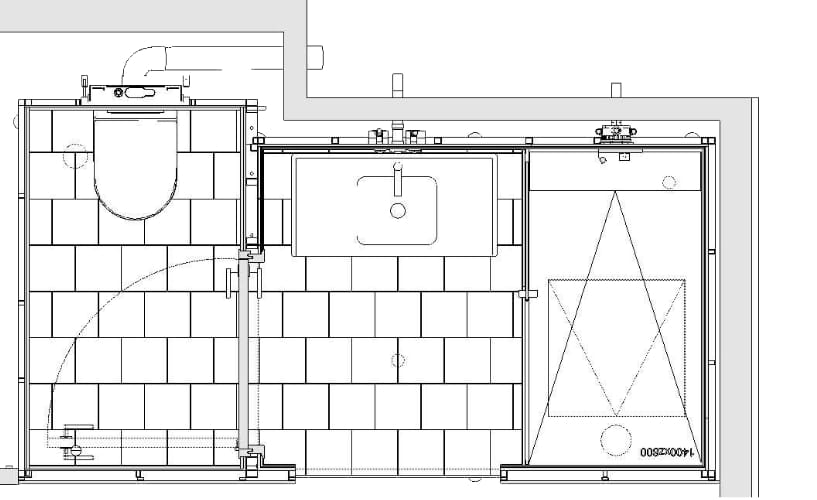
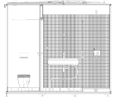
Pod Type 08
It’s All About Details.
Remarkable Precision.
Delivering bathroom pods for one of Paris’ most complex high-rise projects required exceptional coordination, engineering accuracy, and strict quality control.
Every element was developed to meet demanding architectural expectations and high-end design standards.
Bespoke shower wall detail
Bespoke shower wall detail
A highly complex wall interface was developed between the shower area and the adjacent room, ensuring seamless intxgration, waterproof performance, and aesthetic continuity.
Demanding tile installation
The project required precise installation of small-format and design-sensitive tiles, ensuring perfect alignment, durability, and flawless visual finish.
Custom-made high-end washbasin
Custom-made high-end washbasin
A unique washbasin was specially designed and manufactured for the project, combining premium materials, tailored dimensions, and refined detailing to match the architectural concept.